Besoin d'aide ? Si vous souhaitez être accompagné dans la saisie de ce dossier vous pouvez nous appeler au numéro suivant
Vos données restent en mémoire pendant 180 minutes.
veuillez préparer les informations suivantes afin de remplir votre dossier :
Si vous avez déjà rempli votre dossier vous pouvez récupérer votre ancienne saisie grâce à votre identifiant de session. Cet identifiant commence par "bbio_".
Dans le cas contraire ou si vous avez perdu votre code de session, cliquez sur ignorer
Respect de votre vie privée : vos informations personnelles ne seront jamais divulguées sans votre accord.
Veillez renseigner vos coordonnées pour continuer
Oui : si la ville de votre projet est situé à moins de 10 Km de la mer (ou de l'ocean).
Non : si la ville de votre projet est situé à plus de 10 Km de la mer (ou de l'ocean).
Veuillez inscrire la référence cadastrale de votre projet, inscrit dans votre permis de construire. Si vous ne parvenez pas à le trouver, mettre NC.
Chauffe-eau solaire : Capteur solaire thermique pour la production de l'Eau Chaude Sanitaire
Chauffe-eau thermodynamique : Ballon thermodynamique pour la production de l'Eau Chaude Sanitaire("Solution recommandée" qui peut être raccordée à une pompe à chaleur)
50% Enr : Raccordement à un réseau de chaleur alimenté à plus de 50% par une énergie renouvelable ou de récupération(Exemple : raccordement à une centrale de valorisation des déchets)
5 kWhEP/(m2.an) : Contribution des énergies renouvelables supérieure ou égale à 5 kWhEP/(m2.an)(Photovoltaique ou Eolien : il faut compter environ 1kWc pour une maison de 100m² de surface de plancher)
Microcogénération : Production de chauffage et/ou d'Eau Chaude Sanitaire assurée par une chaudière à micro-cogénération à combustible liquide ou gazeux(Technologie encore quasi-inexistante)
Cliquer sur l'image pour l'agrandir.
Le rez-de-chaussé et le sous sol ne doivent pas être pris en compte.
Indiquer la hauteur moyenne d'un niveau en mètres
Surface brute du batiment en m2 : Surface rez de chaussée + surface 1er étage + surface 2ieme étage + ...
Prendre en compte l'épaisseur des murs.
Ne pas compter la surface du garage
Surface nette de chaque pièces en m2 : Surface rez de chaussée + surface 1er étage + surface 2ieme étage + ...
Ne PAS prendre en compte l'épaisseur des murs.
Ne pas compter la surface du garage
Surface brute du batiment en m2: Surface rez de chaussée + surface 1er étage + surface 2ieme étage + ...
Prendre en compte l'épaisseur des murs.
Ne pas compter la surface du garage
Surface nette de chaque pièces en m2: Surface rez de chaussée + surface 1er étage + surface 2ieme étage + ...
Ne PAS prendre en compte l'épaisseur des murs.
Ne pas compter la surface du garage
Emprise au sol net : Indiquez la surface en m2 de l'étage le plus grand Prendre en compte l'épaisseur des murs.
Ne pas compter la surface du garage
Nombre d'angles à 90° portant sur l'intérieur. Par défault : 0. Il s'agit ici de l'inverse d'un angle extérieur. Si l'angle n'est qu'à 45° environ, rajouter seulement 0,5.
Nombre d'angles à 90° portant sur l'extérieur. Par défault : 4 pour les quatres coins d'une maison. Si l'angle n'est qu'à 45° environ, rajouter seulement 0,5.
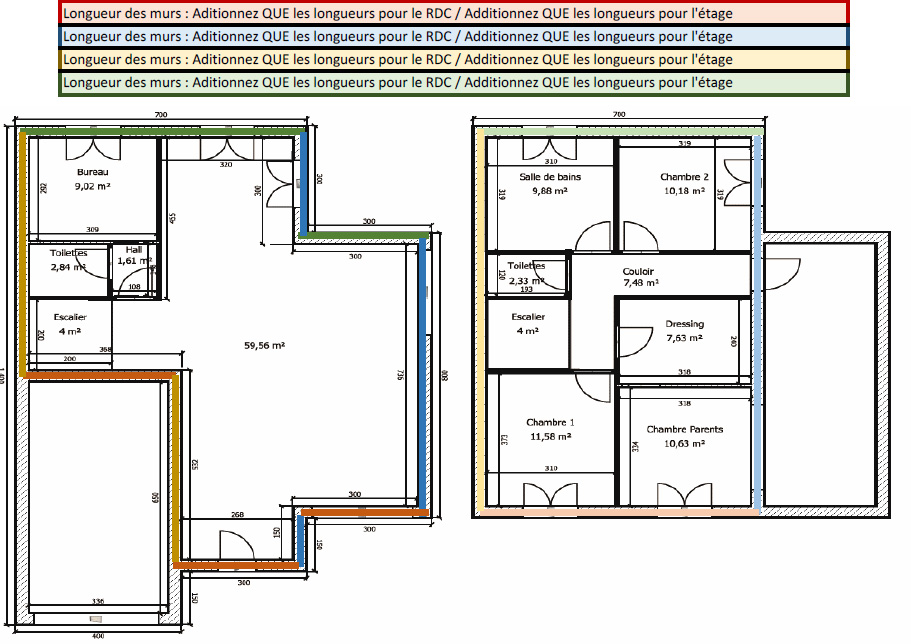
Cliquer sur l'image pour l'agrandir.
|
Principalement contre
Si garage : mettre bâtiment non chauffé |
Longueur
( en mètres ) |
Longueur étage
( en mètres ) |
|||
|---|---|---|---|---|---|
| Nord | m | m | |||
| Sud | m | m | |||
| Est | m | m | |||
| Ouest | m | m | |||
| Sol | Toit |
Murs
| Type | Matériel | Épaisseur (cm) |
|---|
Nouvelle couche
La résistance totale de votre mur est de
Sols
| Type | Matériel | Épaisseur (cm) |
|---|
Nouvelle couche
La résistance totale de votre sol est de
Toit
| Type | Matériel | Épaisseur (cm) |
|---|
Nouvelle couche
La résistance totale de votre toit est de
Veuillez mettre le détail de chaque menuiserie. (ex: 4 fenêtres sur une facade = 4 lignes)
Surface habitable : {{ surface }} m2
Surface vitrée : {{ getSurfaceTotale() }} m2
Ratio : {{ Math.round( 10000 * getSurfaceTotale() / surface ) / 100 }} %
| Façade | Largeur | Hauteur | Matière | |
|---|---|---|---|---|
Nouvelle menuiserie
Ajoutez toute information pouvant aider le thermicien à évaluer correctement votre dossier.
Coordonnées
Nom : {{ civilite }} {{ prenom }} {{ nom }}
Adresse : {{ adresse }}
{{ code_postal }} {{ ville }}
Email : {{ email }}
Téléphone : {{ tel }}
Nom : {{ civilite_projet }} {{ prenom_projet }} {{ nom_projet }}
Adresse : {{ adresse_projet }}
{{ code_postal_projet }} {{ ville_projet }}
Email : {{ email_projet }}
Téléphone : {{ tel_projet }}
Projet
Destination du projet : {{ destination }}
Proche du littoral : {{ littoral }}
Référence cadastrale : {{ cadastre }}
Ventilation : {{ vmc }}
Isolation : {{ isolation }}
Nature des travaux : {{ travaux }}
Énergies renouvelables : {{ enr }}
Bâtiment
Nombre d'étages : {{ etages }}
Hauteur sous plafond : {{ plafond }}
Surface habitable avant travaux : {{ surfaceAvant }}
Surface SHONRT avant travaux : {{ shonrtAvant }}
Surface habitable : {{ surface }}
Surface SHONRT : {{ shonrt}}
Surface du plus grand étage : {{ surface_etage }}
Angles
Angles intérieurs : {{ angles_int }}
Angles extérieurs : {{ angles_out }}
Façades
Nord - contre : {{ nord_contre }}
Nord - longueur : {{ nord_longueur }}
Nord - longueur de l'étage : {{ nord_longueur_etage }}
Sud - contre : {{ sud_contre }}
Sud - longueur : {{ sud_longueur }}
Sud - longueur de l'étage : {{ sud_longueur_etage }}
Est - contre : {{ est_contre }}
Est - longueur : {{ est_longueur }}
Est - longueur de l'étage : {{ est_longueur_etage }}
Ouest - contre : {{ ouest_contre }}
Ouest - longueur : {{ ouest_longueur }}
Ouest - longueur de l'étage : {{ ouest_longueur_etage }}
Sol - contre : {{ sol_contre }}
Toit - contre : {{ toit_contre }}
Isolation
Murs : {{ mur_iso }}
Résistance totale :
Sol : {{ sol_iso }}
Résistance totale :
Toit : {{ toit_iso }}
Résistance totale :
Menuiseries
Surface totale : {{ getSurfaceTotale() }} m2
Façade {{ menuiserie.facade }} - {{ menuiserie.largeur }}m X {{ menuiserie.hauteur }}m - {{ menuiserie.materiel }} - {{ menuiserie.uw }} Uw
Calcul en cours...
| Validité | Bbio | Bbio Max |
|---|---|---|
Une fois votre attestation commandée, vous recevrez un lien afin de remplir et envoyer votre dossier à un de nos thermicien.
Commander votre attestation RT2012| Paroie | Résistance | R Min | |
|---|---|---|---|
| Murs | 5 | ||
| Toit | 7 | ||
| Sol | 4 |
Bureau-etude-thermique-bet.fr est un service de la société :
HelpMeDoc, 80 Chemin des calles 69480 Morance - Siret 521 113 977